貸店舗 長野県伊那市美篶10098-1 青島ナイスロードテナント
- 賃料12万円
- 共/礼/敷なし/なし/1ヶ月
- 保証金
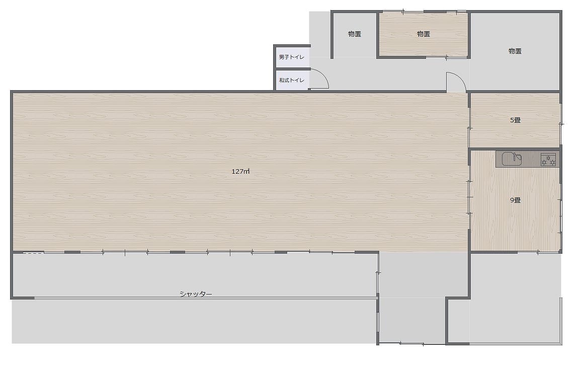
- 専有面積 149.05m² / 45.08坪
最終更新日 2026年02月14日
(株)中央不動産
0120-76-0412
ココスマを見てとお伝えください
地図・周辺環境
※物件位置が表示されていない場合があります。
また特に外部リンク先のGoogleマップでは、実際とは異なる位置が表示される場合があります。
物件の正確な位置は必ず取扱い会社へお問合せください。
(株)中央不動産
0120-76-0412
ココスマを見てとお伝えください
物件詳細
| 賃料 | 12万円 |
|---|---|
| 礼金 | なし |
| 敷金 | 1ヶ月 |
| 共益費 | なし |
| 専有面積 | 149.05m² / 45.08坪 |
| 所在地 | 伊那市美篶10098-1 |
| 建物名 | 青島ナイスロードテナント |
| 交通 | 電車:飯田線伊那市駅 距離2400m |
| 備考 | *トイレ:汲取り |
| 建物構造 | 木造 |
| 建物概要 | 地上1階 |
| 駐車場 | 有 無料 台数:8台あり |
| 完成年月 | 1996年10月 |
| 保険 | 借家人賠償責任保険保険 |
| 更新料 | 総額1.89万円 |
| 契約期間 | 2年 |
| 取引態様 | 一般媒介 |
| 手数料 | 手数料必要 |
| 引渡し/入居日 | 相談 |
| 管理番号 | 245 |
| 物件番号 | 447211 |
| 最終更新日 | 2026-02-14 |


































