中古住宅 長野県伊那市美篶上原4340 伊那市美篶中古住宅
- 価格450万円
- 土地面積1100m2
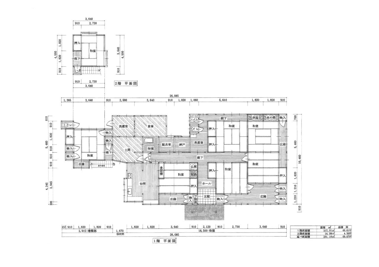
- 間取8LDK(和室7部屋 DK10帖 土間納戸 倉庫6畳)
- 建物面積206.24m2
- 通学区伊那市立美篶小学校(1100m)
伊那市立東部中学校(3600m)
最終更新日 2026年02月26日
宅地と農地を含めると330坪あり、家庭菜園や農業をやってみたい方にお勧めの物件です
(株)織建
担当:織井 常昭
0265-72-4776
ココスマを見てとお伝えください
地図・周辺環境
※物件位置が表示されていない場合があります。
また特に外部リンク先のGoogleマップでは、実際とは異なる位置が表示される場合があります。
物件の正確な位置は必ず取扱い会社へお問合せください。
(株)織建
担当:織井 常昭
0265-72-4776
ココスマを見てとお伝えください
物件詳細
| 価格 | 450万円 |
|---|---|
| 土地面積 | 1100m²(公簿) / 332.75坪 |
| 建物面積 | 206.24m² / 62.38坪 |
| 間取 | 8LDK(和室7部屋 DK10帖 土間納戸 倉庫6畳) |
| 所在地 | 伊那市美篶上原4340 |
| 建物名 | 伊那市美篶中古住宅 |
| 通学区 | 伊那市立美篶小学校(1100m) 伊那市立東部中学校(3600m) |
| 交通 | 高速道路:中央道 伊那I.C. 車18分 |
| 備考 | 農地部分を分筆してからの売買になります。 現状引き渡しになるため、水回りのリフォームは必要になる場合が有ります。 現在汲み取り式トイレですが、下水道への接続は可能です。 |
| 建物構造 | 木造 |
| 建物概要 | 地上2階 |
| 駐車場 | 有 台数:7台あり |
| 下水 | 簡易水洗 |
| 完成年月日 | 1965年9月 |
| 土地権利 | 所有権 |
| 接道状況 | 方角:西 道路幅員:2m 公私区分:公道 接面:25m |
| 設備 | システムキッチン・BT別室・暖房便座・バス1坪以上・トイレ2箇所・日当り良好・二世帯向き・閑静住宅街・セットバック要 |
| 取引態様 | 一般媒介 |
| 手数料 | 手数料必要 |
| 引渡し/入居日 | 相談 |
| 管理番号 | 美篶-1中古 |
| 物件番号 | 448826 |
| 最終更新日 | 2026-02-26 |




















